





Description
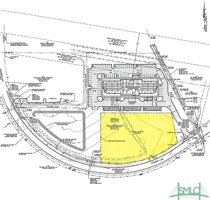
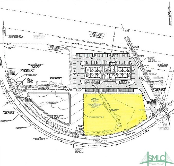
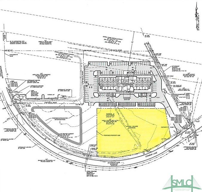
Prime Commercial Land with Highway Frontage - 1.55 Acres on Stambuk Ln, Statesboro, GA Unlock exceptional business potential with this 1.55-acre commercial lot located on highly visible Stambuk Lane, just off the highway in rapidly growing Statesboro, Georgia. Offering excellent frontage and exposure, this property is ideally positioned for a wide range of commercial uses. Water and sewer available.
Location
Listed By
Similar Listings
No similar listings found
Unfortunately, we don't have any similar listings at the moment. Please remove or change some of the selected filters.
© Athens Area MLS (AAMLS). Information deemed reliable, but not guaranteed Updated: 24th April, 2026 11:14 PM (UTC)
Listing Office: Coldwell Banker Conner Realty
Attribution contact: (912) 764-5485





















