











Description
NEW PHASE! The Pines is a vibrant community in Bloomingdale, GA, just minutes from destination-worthy Savannah, offering an expansive resort style pool, clubhouse, & golf cart friendly paths.
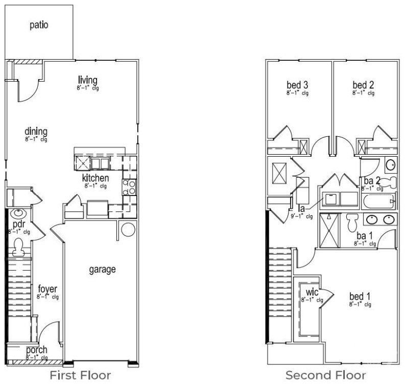
The Pearson is a thoughtfully designed new construction townhome offering 3 bedrooms, 2.5 bathrooms, a 1-car garage, and 1,418 square feet of modern living space in The Pines at New Hampstead, located in Bloomingdale, Georgia.
The main floor living area is comprised of a kitchen with stainless steel appliances overlooking the living area and a designated dining space - ideal for gathering - with an adjacent half bath. Upstairs, the primary room includes a sizable walk in closet and private bathroom with dual vanity and standing shower. Two secondary bedrooms share a full bathroom with a shower/tub. In the center of the secondary floor lives a laundry room, convenient for everyday living.
Enjoy the amenities of this gorgeous community along with additional conveniences - landscaping services, irrigation systems, professional pressure washing and roof repairs, exterior painting touch ups, and termite inspections!
Come feel right at home in the Townhomes at the Pines at New Hampstead today!
Location
Listed By
Similar Listings
No similar listings found
Unfortunately, we don't have any similar listings at the moment. Please remove or change some of the selected filters.
© Athens Area MLS (AAMLS). Information deemed reliable, but not guaranteed Updated: 28th April, 2026 4:09 PM (UTC)
Listing Office: DR Horton Realty Of Georgia
Attribution contact: (912) 402-5749






























































































































