



Nearby Schools
North TopsailElementary School
Surf CityMiddle School
TopsailHigh School
Description
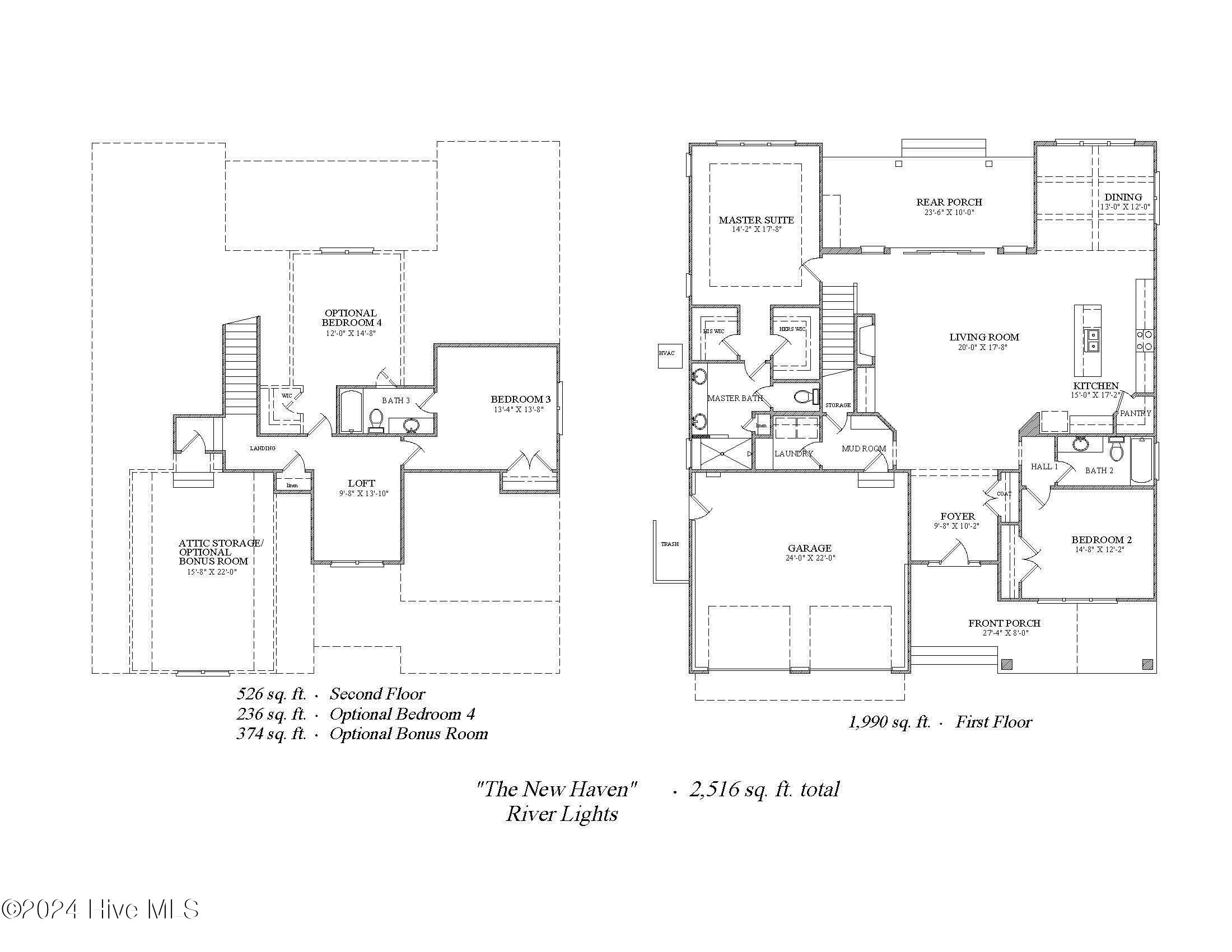
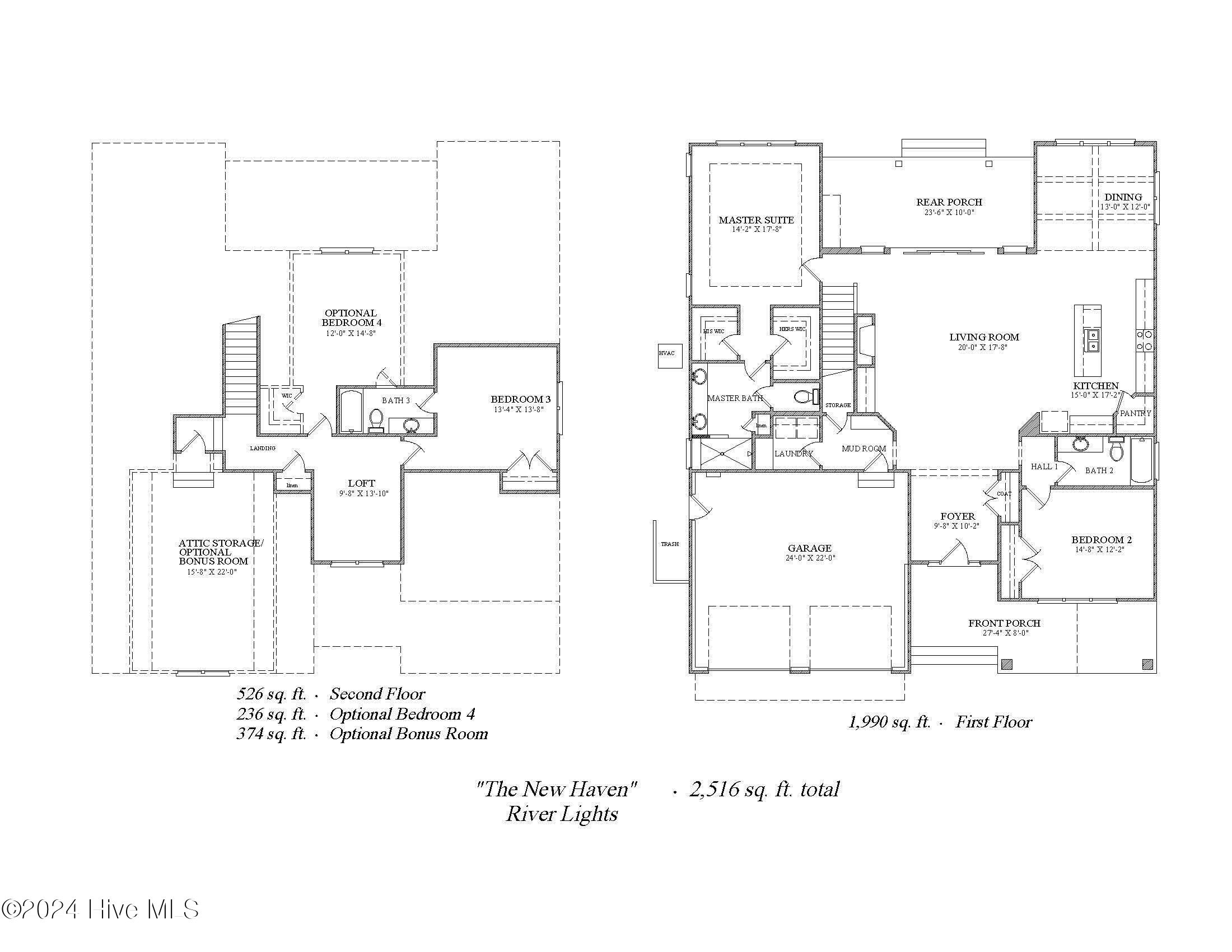
The NEW HAVEN by Charter Building Group. This is a two story floor plan with 4 bedrooms and 3 full baths with a Bonus Room. Open living area with access to a large screened in porch. EAST WYND is a WATERFRONT community with a beautiful Intracoastal front day dock and friendly vibes. Charter Building Group homes feature modern interior finishes, oversized windows, quality craftsmanship and spacious outdoor living spaces.
THIS IS A PROPOSED CONSTRUCTION HOME
Location
Listed By
Co-Listing Agent
Team Holly Overton Marketing Group
Coldwell Banker Sea Coast Advantage
Similar Listings
No similar listings found
Unfortunately, we don't have any similar listings at the moment. Please remove or change some of the selected filters.
© Athens Area MLS (AAMLS). Information deemed reliable, but not guaranteed Updated: 29th April, 2026 7:14 AM (UTC)
Listing Office: Coldwell Banker Sea Coast Advantage
Attribution contact: 910-599-7811



















